| 
			 Standort  | 
			
			 
  | 
			
			 Stöcklimatt Deitingen  | 
		
| 
			 Auftraggeber  | 
			
			 
  | 
			|
| 
			 Planungsteam  | 
			
			 
  | 
			
			 David &  von Arx Landschaftsarchitektur  | 
		
| 
			 Leistungen  | 
			
			 
  | 
			
			 Gestaltungs- und Teilzonenplan auf Basis unseres Studienauf-  | 
		
| 
			 Termine  | 
			
			 
  | 
			
			 Genehmigung Baukredit 2023  | 
		
| 
			 Besonderes  | 
			
			 
  | 
			
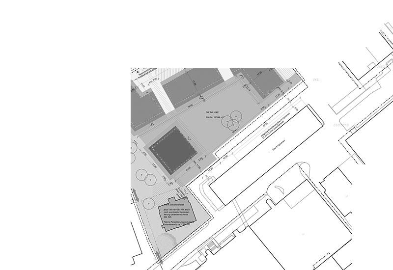
			 Studienauftrag 1. Rang 2019  | 
		
Gestaltungsplan "Stöcklimatt" Deitingen, Genehmigung 2023
| 
			 Standort  | 
			
			 
  | 
			
			 Hauptstrasse Rüttenen  | 
		
| 
			 Auftraggeber  | 
			
			 
  | 
			|
| 
			 Planerteam  | 
			
			 
  | 
			
			 
  | 
		
| 
			 Leistungen  | 
			
			 
  | 
			
			 Gestaltungsplan mit Richtprojekt  | 
		
| 
			 Termine  | 
			
			 
  | 
			
			 Genehmigung durch Regierungsratsbeschluss  | 
		
| 
			 Besonderes  | 
			
			 
  | 
			
			 
  | 
		
Gestaltungsplan "Am Bach" Rüttenen, Genehmigung 2016
| 
			 Standort  | 
			
			 
  | 
			
			 Blümlisalpstrasse Biberist  | 
		
| 
			 Auftraggeber  | 
			
			 
  | 
			|
| 
			 Planerteam  | 
			
			 
  | 
			
			 
  | 
		
| 
			 Leistungen  | 
			
			 
  | 
			
			 Gestaltungsplan mit Richtprojekt  | 
		
| 
			 Termine  | 
			
			 
  | 
			
			 Genehmigung durch Regierungsratsbeschluss  | 
		
| 
			 Besonderes  | 
			
			 
  | 
			
Gestaltungsplan "Blümlisalpstrasse" Biberist, Genehmigung 2016
| 
			 Standort  | 
			
			 
  | 
			
			 Stadt Solothurn  | 
		
| 
			 Auftraggeber  | 
			
			 
  | 
			
			 Stadt Solothurn  | 
		
| 
			 Planerteam 
  | 
			
			 
  | 
			
			 Planteam S AG (Federführung)  | 
		
| 
			 Leistungen  | 
			
			 
  | 
			
			 Testplanung zweistufig  | 
		
| 
			 Termine  | 
			
			 
  | 
			
			 2016  | 
		
| 
			 Besonderes  | 
			
			 
  | 
			
			 Antrag auf Weiterbearbeitung  | 
		
Testplanung Revision Ortsplanung Stadt Solothurn - Phase 2 Masterplanung (REK), 2016
| 
			 Standort  | 
			
			 
  | 
			|
| 
			 Auftraggeber  | 
			
			 
  | 
			|
| 
			 Fachplaner  | 
			
			 
  | 
			
			 
  | 
		
| 
			 Leistungen  | 
			
			 
  | 
			
			 Gestaltungsplan und Vorprojekt  | 
		
| 
			 Termine  | 
			
			 
  | 
			
			 Gestaltungsplan genehmigt 2014  | 
		
Gestaltungsplan "Hofmatte Süd" Solothurn, Genehmigung 2014
| 
			 Standort  | 
			
			 
  | 
			
			 Walter Hammer - Strasse, 4500 Solothurn  | 
		
| 
			 Bauherrschaft  | 
			
			 
  | 
			|
| 
			 Fachplaner  | 
			
			 
  | 
			
			 
  | 
		
| 
			 Leistungen  | 
			
			 
  | 
			
			 
  | 
		
| 
			 Termine  | 
			
			 
  | 
			
			 Genehmigung 2008  | 
		
| 
			 Besonderes  | 
			
			 
  | 
			
Gestaltungsplan "Hofmatt West" Solothurn, Genehmigung 2008
| 
			 Standort  | 
			
			 
  | 
			|
| 
			 Auftraggeber 
  | 
			
			 
  | 
			|
| 
			 Fachplaner  | 
			
			 
  | 
			
			 
  | 
		
| 
			 Leistungen  | 
			
			 
  | 
			
			 
  | 
		
| 
			 Termine  | 
			
			 
  | 
			
			 Genehmigung 2005  | 
		
| 
			 Besonderes  | 
			
			 
  | 
			
Gestaltungsplan "von Roll Areal" Solothurn, Genehmigung 2005
| 
			 Standort  | 
			
			 
  | 
			|
| 
			 Auftraggeber 
  | 
			
			 
  | 
			|
| 
			 Fachplaner  | 
			
			 
  | 
			
			 Architektengemeinschaft Flury Rudolf Graf Stampfli Jenni  | 
		
| 
			 Leistungen  | 
			
			 
  | 
			
			 Gestaltungsplan  | 
		
| 
			 Termine  | 
			
			 
  | 
			
			 Genehmigung 2004  | 
		
| 
			 Besonderes 
  | 
			
			 
  | 
			
			 Projektwettbewerb 1. Rang  | 
		
Gestaltungsplan "Seminarhotel / Kreuzackerpark Ost" Solothurn, Genehmigung 2004
| 
			 Standort  | 
			
			 
  | 
			|
| 
			 Auftraggeber 
  | 
			
			 
  | 
			
			 Bauherrengemeinschaft Neuer Bahohfplatz (Kanton und Stadt Solothurn, SBB, Asm, BSU, Regio Energie)  | 
		
| 
			 Fachplaner  | 
			
			 
  | 
			|
| 
			 Leistungen  | 
			
			 
  | 
			
			 Gestaltungsplan  | 
		
| 
			 Termine  | 
			
			 
  | 
			
			 Genehmigung 2004  | 
		
| 
			 Besonderes 
  | 
			
			 
  | 
			
			 Projektwettbewerb 1. Rang  | 
		
Gestaltungplan "Bahnhofgebiet" Solothurn, Genehmigung 2004
Die regelmässig wiederkehrenden Überschwemmungen der Dünnern stellten die erste Raumplanung des Gäus dar. DiesesPrinzip wird als Metapher für die Planung verwendet. Der "See" wird als Freiraum erfahrbar gemacht. Dazu wird der Siedlungsraum durch einen starken Rand vom Freiraum getrennt. Auf den "Halbinseln" und am Hang werden die empfindlichen Nutzungen situiert. Die "Inseln" werden nahe der Verkehrsträgerplaziert und beinhalten die unempfindlichen Nutzungen. Um die Synergie zu nutzen werden kleine Industriezonen zugunsten zweier grossen Gebiete aufgehoben. Der zusammenhängende Freiraum, welcher als gleichberechtigter Bestandteil der Landschaft verstanden wird, schafft eine räumliche Trennung zwischen den beiden Nutzungen und Massstäben.
Die Studie wurde unterstützt durch des Heimatschutz Solothurn, das Raumplanungsamt Solothurn und die Wirtschaftsförderung Solothurn
| 
			 Standort  | 
			
			 
  | 
			|
| 
			 Auftraggeber  | 
			
			 
  | 
			
			 SIA Sektion Solothurn  | 
		
| 
			 Projektverfasser  | 
			
			 
  | 
			
			 Stefan Rudolf  | 
		
| 
			 Projektbegleitung 
  | 
			
			 
  | 
			|
| 
			 Termine  | 
			
			 
  | 
			
			 1993  | 
		
Lebensraum Gäu Bezirk Gäu, 1993
    